Top 1
Gartenwohnung über zwei Ebenen mit großen Terrassen
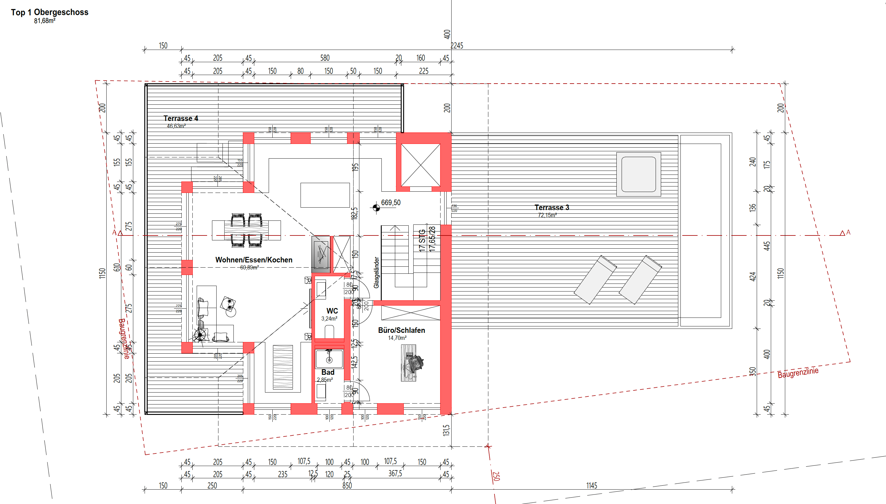
Top 1 im Projekt Haydnweg: Wohnen über zwei Ebenen mit großzügigen Terrassen und Gartenflächen. EG mit 3 Schlafzimmern und 2 Bädern, OG mit offenem Wohn-/Ess-/Kochbereich und zusätzlichem Zimmer.




Fordern Sie
jetzt Ihr Exposé an
Im Exposé erhalten Sie alle wichtigen Informationen zu Ihrer neuen Wohnmöglichkeit. Auf Wunsch vereinbaren wir gerne ein persönliches Beratungsgespräch, um Ihre individuellen Fragen zu klären.







